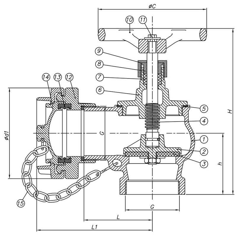
| NO | PARÇA ADI | MALZEME |
|---|---|---|
| 1 | Gövde | Rg-5/ Rg-10/G-CuSn10 |
| 2 | Klape | Rg-5/ Rg-10/G-CuSn10 |
| 3 | Mil | Ms-58/Ms-59 |
| 4 | Conta | NBR |
| 5 | Kapak | Rg-5/ Rg-10/G-CuSn10 |
| 6 | Rodela | Ms-58 |
| 7 | Salmastra | Graphite + PTFE |
| 8 | Baskı | Ms-58 |
| 9 | Volan | GG-25 |
| 10 | Rondela | Steel 5 Zn |
| 11 | Cıvata | Steel 5 Zn |
| 12 | Conta | NBR |
| 13 | Sabit Kaplin | Rg-5/Rg-10/G-CuSn10 |
| 14 | O-Ring | NBR |
| 15 | Tapa Kaplin | Rg-5/Rg-10/G-CuSn10 |
| 16 | Zincir | Steel 5 Zn |
| Vana Boyutları DIN 86211 | ||||||||
|---|---|---|---|---|---|---|---|---|
Anma Çapı | Ød - Øg | Ød2 | L1 | L2 | Ød1 | H | Ağırlık(kg) | Stok Kodu |
DN 40 DN 50 DN 65 | R 11/2” | 96 | 70 | 125 | 100 | 205 | 2,5 | |
R 2” | 96 | 75 | 130 | 215 | 3,0 | |||
R 21/2” | 124 | 85 | 175 | 120 | 255 | 3,5 | ||
| Anma Basıncı | : | PN 10-16 |
| Ölçü Aralığı | : | DN40-DN50-DN-65 |
| Ölçüler | : | DIN 86211 |
| Flanş | : | DIN EN 10226-1 (Threaded) |
| BSB İç Dişli Giriş | ||
| BSB Dış Dişli Çıkış | ||